- 上海良大閥門有限公司
- 電話:021-51875578
- 傳真:021-57443237
- 手機:13916747333
- 郵箱:a15566@126.com
- 地址:奉賢區工業綜合開發區942號
當前位置:首頁 >> 襯膠閥門
>> 襯膠閘閥 >> 法蘭襯膠閘閥 更新時間 2025-5-10 0:32:03
襯膠閘閥
| 法蘭襯膠閘閥 |
![]() |
產品名稱: | 法蘭襯膠閘閥 | |||||
| 型號: | Z41J | ||||||
| 口徑: | DN15-1200 | ||||||
| 壓力: | 1.6-6.4MPa | ||||||
| 材質: | 鑄鐵、鑄鋼、不銹鋼等 | ||||||
|
|||||||
| 您正在瀏覽:【法蘭襯膠閘閥】 | |||||||
法蘭襯膠閘閥詳細介紹
法蘭襯膠閘閥產品概述:
襯膠閘閥產品是一種最帶見的啟閉閥門,利用兩側面密封呈楔狀的閘板來接通或截斷管路中介質,楔式閘閥不允許微量開啟在管路中作節流裝置用,以免因高速流動的介質沖蝕而加快密封面的損壞。襯膠閘閥廣泛應用于化工,石油,天然氣,環保,城市管道,燃氣管線等工業部門,介質的流向不受限制,全開時,密封面受工作介質的沖蝕比截止閥小,體形比較簡單,鑄造工藝性較好.
法蘭襯膠閘閥結構特點:
1、產品連接件少,整體鋼性好。
2、截流速度快。
3、開度限位機構方便,靈活,精確。
4、體形小巧,外形美觀。
5、操作簡單,省力,維修方便。
6、流體阻力小,密封面受介質的沖蝕小。
7、介質流向不愛限制,不擾流,不降低壓力。
法蘭襯膠閘閥產品實物圖:

法蘭襯膠閘閥產品標準:
設計制造標準:GB/T 12234
結構長度標準:GB/T 12221-2005
連接法蘭標準:GB/T 9113
壓力溫度等級:GB/T 12224-2005
試驗檢驗標準:GB/T 13927-2008

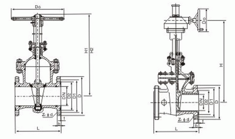
法蘭襯膠閘閥連接尺寸:
公稱通徑DN(mm)
|
主要外形尺寸及連接尺寸(mm)
|
|||||||||
L
|
D
|
D1
|
D2
|
b
|
f
|
z-Φd
|
H
|
H1
|
D0
|
|
Z40、Z41、Z42
|
||||||||||
15
|
130
|
95
|
65
|
45
|
14
|
2
|
4-Φ14
|
220
|
240
|
120
|
20
|
150
|
105
|
75
|
55
|
14
|
2
|
4-Φ14
|
255
|
284
|
140
|
25
|
160
|
115
|
85
|
65
|
14
|
2
|
4-Φ14
|
275
|
303
|
160
|
32
|
180
|
135
|
100
|
78
|
16
|
2
|
4-Φ18
|
280
|
321
|
180
|
40
|
200
|
145
|
110
|
85
|
16
|
3
|
4-Φ18
|
300
|
352
|
200
|
50
|
250
|
160
|
125
|
100
|
16
|
3
|
4-Φ18
|
358
|
438
|
240
|
65
|
265
|
180
|
145
|
120
|
18
|
3
|
4-Φ18
|
375
|
450
|
240
|
80
|
280
|
195
|
160
|
135
|
20
|
3
|
8-Φ18
|
433
|
528
|
280
|
100
|
300
|
215
|
180
|
155
|
20
|
3
|
8-Φ18
|
502
|
620
|
320
|
125
|
325
|
245
|
210
|
185
|
22
|
3
|
8-Φ18
|
612
|
753
|
360
|
150
|
350
|
280
|
240
|
210
|
24
|
3
|
12-Φ23
|
676
|
847
|
360
|
200
|
400
|
335
|
295
|
265
|
26
|
3
|
12-Φ25
|
820
|
1039
|
400
|
250
|
450
|
405
|
355
|
320
|
30
|
3
|
12-Φ25
|
969
|
1245
|
450
|
300
|
500
|
460
|
410
|
375
|
30
|
3
|
12-Φ25
|
1142
|
1472
|
560
|
350
|
550
|
520
|
470
|
435
|
34
|
4
|
16-Φ25
|
1280
|
1450
|
640
|
400
|
600
|
580
|
525
|
485
|
36
|
4
|
16-Φ30
|
1452
|
1887
|
640
|
450
|
650
|
640
|
585
|
545
|
38
|
4
|
20-Φ30
|
1541
|
2011
|
720
|
500
|
700
|
705
|
650
|
608
|
42
|
4
|
20-Φ34
|
1676
|
2181
|
720
|
600
|
800
|
840
|
770
|
718
|
46
|
5
|
20-Φ41
|
1874
|
2346
|
800
|
700
|
900
|
910
|
840
|
788
|
48
|
5
|
24-Φ41
|
2139
|
2819
|
880
|
800
|
1000
|
1020
|
950
|
898
|
50
|
5
|
24-Φ41
|
2293
|
3034
|
980
|
900
|
1100
|
1120
|
1050
|
998
|
52
|
5
|
28-Φ41
|
2595
|
3445
|
1080
|
1000
|
1200
|
1255
|
1170
|
1110
|
54
|
5
|
28-Φ42
|
2733
|
3683
|
1180
|
1200
|
1350
|
1485
|
1390
|
1325
|
56
|
5
|
32-Φ48
|
3032
|
3032
|
1300
|
提示:本文中所有文字、數據、圖片均只適用于參考,需要了解更詳細的【法蘭襯膠閘閥】參數、選型、價格等請聯系我們,我們將竭誠為您服務!



















